Omschrijving
Het basismodel wordt geleverd zonder ramen en buitendeuren. Deze moeten er los bijbesteld worden. Kies uit houten of kunststof ramen en buitendeuren. Let op: het unieke pakketnummer, staat vermeld in de handleiding, op de tekening en op de sticker aan de bovenzijde van het pakket. Zonder dit pakketnummer kunnen wij helaas geen service-verzoeken in behandeling nemen.Specificaties
Included | cilinderslot |
Erp Pricing Group | Gebouwen |
Georgian Bar | losse roedes |
Construction Variant | de dakplanken van deze blokhut hebben een dikte van 27 mm, wat ideaal is voor isolatie |
Durability Class | duurzaamheidsklasse 4 |
Material | hout |
Assortment Type | Primair assortiment |
Finishing | geschaafd |
Type Door | enkele deur |
Choose Canopy | met overkapping zijkant |
Glass Thickness | 3-9-3mm |
Product Life Cycle | Actief |
Type Roof | zadeldak |
Drying | gedroogd |
Opening Direction Door | links scharnierend |
Material Detailed | vuren |
Glass | isolatieglas |
Treatment | onbehandeld |
Included Roof Covering | Optioneel |
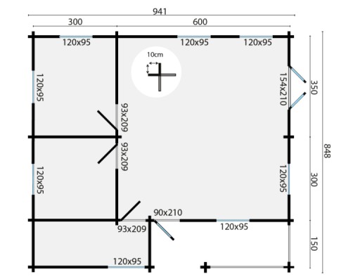
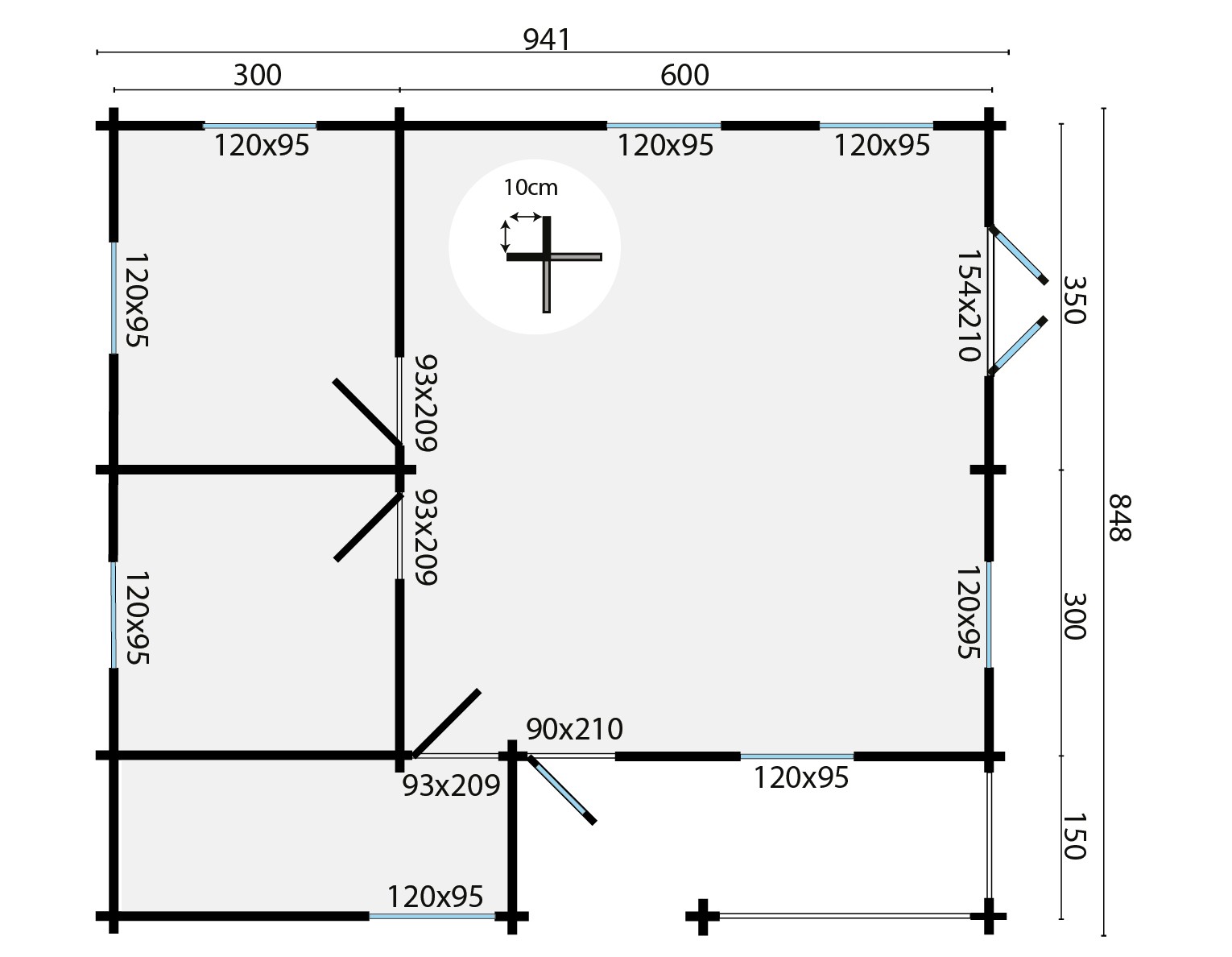
Width | 848 cm |
Length | 941 cm |
Content M3 | 179.3 m³ |
Foundation | 921 x 828 cm |
Number Door | 5 |
Number Room | 4 |
Height Ridge | 317 cm |
Surface Total | 72.4 m² |
Wall Thickness | 70 mm |
Stock Threshold | 15 |
Extra Text Field | - |
Roof Surface Area | 87.2 m² |
Suitable Roof Tile | 0 |
Buildinstructions 1 | - |
Buildinstructions 2 | - |
Luifeloppervlakte | 7.2 m² |
Included Foundation | - |
Number Opening Window | 8 |
Inner Floor Surface Area | 65.2 m² |
Asset Technical Drawing 1 | 2c914bccd92a5936a5c605ad48c54b54 |
Dimensions Corner Profile | 10 cm |
Asset Strength Calculation 1 | 9f80726e70e853a3bc29472e8f108eba |
Included
cilinderslot
Erp Pricing Group
Gebouwen
Georgian Bar
losse roedes
Construction Variant
de dakplanken van deze blokhut hebben een dikte van 27 mm, wat ideaal is voor isolatie
Durability Class
duurzaamheidsklasse 4
Material
hout
Assortment Type
Primair assortiment
Finishing
geschaafd
Type Door
enkele deur
Choose Canopy
met overkapping zijkant
Glass Thickness
3-9-3mm
Product Life Cycle
Actief
Type Roof
zadeldak
Drying
gedroogd
Opening Direction Door
links scharnierend
Material Detailed
vuren
Glass
isolatieglas
Treatment
onbehandeld
Included Roof Covering
Optioneel
Width
848 cm
Length
941 cm
Content M3
179.3 m³
Foundation
921 x 828 cm
Number Door
5
Number Room
4
Height Ridge
317 cm
Surface Total
72.4 m²
Wall Thickness
70 mm
Stock Threshold
15
Extra Text Field
-
Roof Surface Area
87.2 m²
Suitable Roof Tile
0
Buildinstructions 1
-
Buildinstructions 2
-
Luifeloppervlakte
7.2 m²
Included Foundation
-
Number Opening Window
8
Inner Floor Surface Area
65.2 m²
Asset Technical Drawing 1
2c914bccd92a5936a5c605ad48c54b54
Dimensions Corner Profile
10 cm
Asset Strength Calculation 1
9f80726e70e853a3bc29472e8f108eba
Reviews
Wat zeggen onze klanten?
Wij vinden het belangrijk om transparant om te gaan met onze reviews, daarom vragen we iedere klant naar de ervaring met tuinhoutdeal.com. Hierbij filteren weniet en verwijderen we ook nooit negatieve reviews. We geven jou als klant namelijk graag altijd een zo objectief mogelijk beeld over de producten, diensten en services die wij leveren.
B. van den Berg

Snelle serivice, goede prijs. Aanrader