Omschrijving
Let op: u dient het unieke pakketnummer, te vinden op het label wat aan de bovenzijde van de geleverde pakketten bevestigd is, te bewaren voor eventuele reclamaties. Zonder dit pakketnummer kunnen wij helaas geen service-verzoeken in behandeling nemen.Specificaties
Choose Canopy | met overkapping voorkant |
Erp Pricing Group | Gebouwen |
Georgian Bar | losse roedes |
Colour | honinggeel |
Opening Direction Door | rechts scharnierend |
Material | hout |
Construction Variant | deuren en ramen zijn zowel links als rechts te plaatsen |
Colour Family | geel |
Assortment Type | Primair assortiment |
Durability Class | duurzaamheidsklasse 3 |
Finishing | geschaafd |
Glass Thickness | 3-9-3mm |
Product Life Cycle | Actief |
Type Roof | zadeldak |
Drying | gedroogd |
Included | cilinderslot |
Type Door | dubbele deur |
Material Detailed | vuren |
Glass | isolatieglas |
Treatment | geïmpregneerd |
Included Roof Covering | Optioneel |
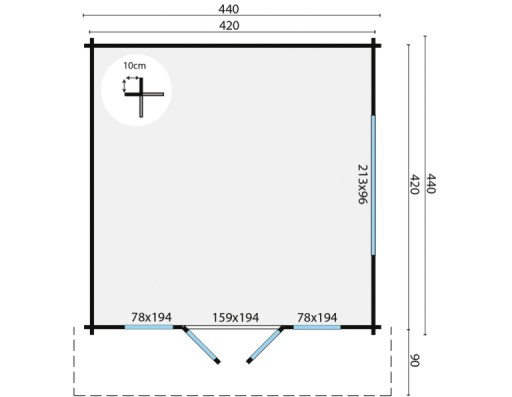
Width | 440 cm |
Length | 440 cm |
Content M3 | 40.5 m³ |
Foundation | 420 x 420 cm |
Number Door | 1 |
Number Room | 1 |
Height Ridge | 263 cm |
Surface Total | 17.6 m² |
Wall Thickness | 58 mm |
Stock Threshold | 15 |
Extra Text Field | Tip: bij het gebruik van dakpanprofielplaten raden wij aan om 8 stuks van artikel P006799 te bestellen, te gebruiken als brede windveer |
Roof Surface Area | 25.1 m² |
Suitable Roof Tile | 0 |
Buildinstructions 1 | d0c13441004b59c8aee027245296132b |
Number Fixed Window | 2 |
Number Opening Window | 1 |
Inner Floor Surface Area | 17.6 m² |
Asset Technical Drawing 1 | d284f9e5159e57648b02555f7bb09c4d |
Dimensions Corner Profile | 10 cm |
Asset Strength Calculation 1 | aecdb03cc6ff566b86fa35013846c21d |
Choose Canopy
met overkapping voorkant
Erp Pricing Group
Gebouwen
Georgian Bar
losse roedes
Colour
honinggeel
Opening Direction Door
rechts scharnierend
Material
hout
Construction Variant
deuren en ramen zijn zowel links als rechts te plaatsen
Colour Family
geel
Assortment Type
Primair assortiment
Durability Class
duurzaamheidsklasse 3
Finishing
geschaafd
Glass Thickness
3-9-3mm
Product Life Cycle
Actief
Type Roof
zadeldak
Drying
gedroogd
Included
cilinderslot
Type Door
dubbele deur
Material Detailed
vuren
Glass
isolatieglas
Treatment
geïmpregneerd
Included Roof Covering
Optioneel
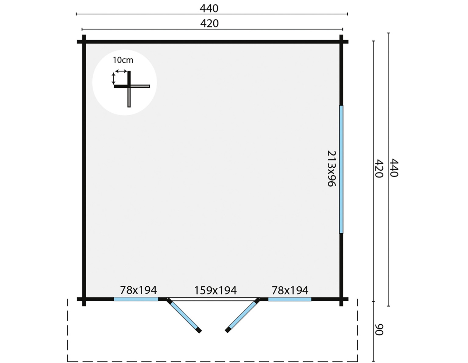
Width
440 cm
Length
440 cm
Content M3
40.5 m³
Foundation
420 x 420 cm
Number Door
1
Number Room
1
Height Ridge
263 cm
Surface Total
17.6 m²
Wall Thickness
58 mm
Stock Threshold
15
Extra Text Field
Tip: bij het gebruik van dakpanprofielplaten raden wij aan om 8 stuks van artikel P006799 te bestellen, te gebruiken als brede windveer
Roof Surface Area
25.1 m²
Suitable Roof Tile
0
Buildinstructions 1
d0c13441004b59c8aee027245296132b
Number Fixed Window
2
Number Opening Window
1
Inner Floor Surface Area
17.6 m²
Asset Technical Drawing 1
d284f9e5159e57648b02555f7bb09c4d
Dimensions Corner Profile
10 cm
Asset Strength Calculation 1
aecdb03cc6ff566b86fa35013846c21d
Reviews
Wat zeggen onze klanten?
Wij vinden het belangrijk om transparant om te gaan met onze reviews, daarom vragen we iedere klant naar de ervaring met tuinhoutdeal.com. Hierbij filteren weniet en verwijderen we ook nooit negatieve reviews. We geven jou als klant namelijk graag altijd een zo objectief mogelijk beeld over de producten, diensten en services die wij leveren.
B. van den Berg

Snelle serivice, goede prijs. Aanrader