Omschrijving
Het basismodel wordt geleverd zonder ramen en buitendeuren. Deze moeten er los bijbesteld worden. Kies uit houten of kunststof ramen en buitendeuren. Let op: het unieke pakketnummer, staat vermeld in de handleiding, op de tekening en op de sticker aan de bovenzijde van het pakket. Zonder dit pakketnummer kunnen wij helaas geen service-verzoeken in behandeling nemen.Specificaties
Inbegrepen | cilinderslot |
Prijsgroep | Gebouwen |
Contructie te wijzigen | de dakplanken van deze blokhut hebben een dikte van 27 mm, wat ideaal is voor isolatie |
Materiaal | hout |
Soort assortiment | Primair assortiment |
Blokhutbehandeling | bruin geïmpregneerd |
Duurzaamheidsklasse | duurzaamheidsklasse 3 |
Afwerking | geschaafd |
Type Deur | enkele deur |
Luifelkeuze | met overkapping zijkant |
Glasdikte | 3-9-3mm |
Kleur | bruin |
Assortimentstatus | Actief |
Daktype | zadeldak |
Droging | gedroogd |
Draairichting deur | links scharnierend |
Hoofdmateriaal | vuren |
Glas | isolatieglas |
Kleurfamilie | bruin |
Behandeling | geïmpregneerd |
Dakbedekking inbegrepen | Optioneel |
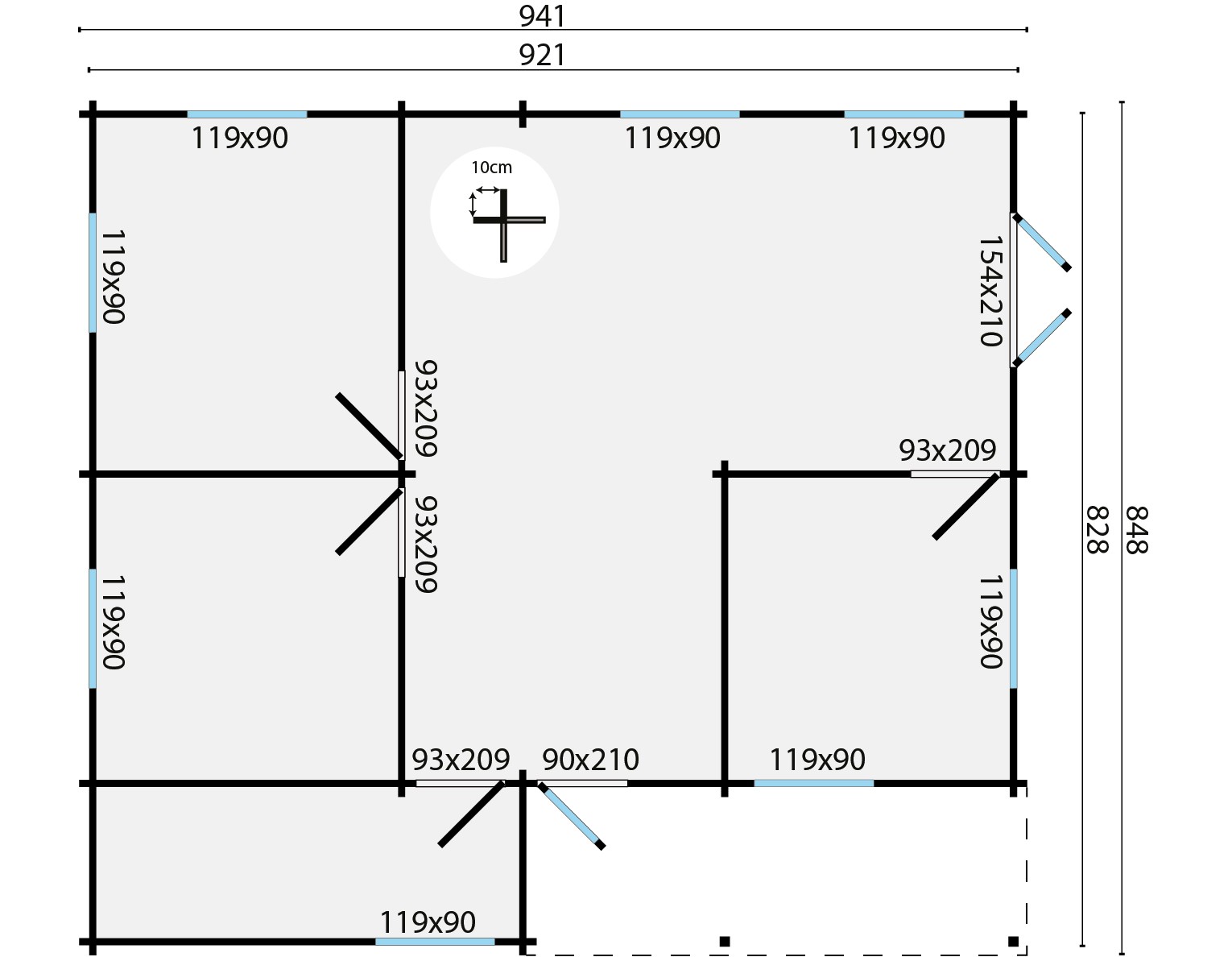
Breedte | 848 cm |
Lengte | 941 cm |
Inhoud in M3 | 183.9 m³ |
Fundering | 921 x 828 cm |
Aantal deuren | 6 |
Aantal kamers | 5 |
Nokhoogte | 317 cm |
Oppevlakte totaal | 72 m² |
Wanddikte | 70 mm |
Minimale voorraad | 15 |
Extra product informatie | - |
Dakoppervlakte | 87.2 m² |
Geschikt voor dakpannen | Nee |
Bouwinstructie 1 | 9a1d0dea7da25c26b349c8ebe1dd019c |
Luifeloppervlakte | 7.2 m² |
Inclusief Fundering | - |
Productblad 1 | e65d250ed9ed59cebe0a6996b076f23b |
Aantal te openen ramen | 8 |
Vloeroppervlakte binnen | 64.8 m² |
Afmetingen hoekprofiel | 10 cm |
Sterkteberekening 1 | 74994287027550afacc9a571b4b9c843 |
Inbegrepen
cilinderslot
Prijsgroep
Gebouwen
Contructie te wijzigen
de dakplanken van deze blokhut hebben een dikte van 27 mm, wat ideaal is voor isolatie
Materiaal
hout
Soort assortiment
Primair assortiment
Blokhutbehandeling
bruin geïmpregneerd
Duurzaamheidsklasse
duurzaamheidsklasse 3
Afwerking
geschaafd
Type Deur
enkele deur
Luifelkeuze
met overkapping zijkant
Glasdikte
3-9-3mm
Kleur
bruin
Assortimentstatus
Actief
Daktype
zadeldak
Droging
gedroogd
Draairichting deur
links scharnierend
Hoofdmateriaal
vuren
Glas
isolatieglas
Kleurfamilie
bruin
Behandeling
geïmpregneerd
Dakbedekking inbegrepen
Optioneel
Breedte
848 cm
Lengte
941 cm
Inhoud in M3
183.9 m³
Fundering
921 x 828 cm
Aantal deuren
6
Aantal kamers
5
Nokhoogte
317 cm
Oppevlakte totaal
72 m²
Wanddikte
70 mm
Minimale voorraad
15
Extra product informatie
-
Dakoppervlakte
87.2 m²
Geschikt voor dakpannen
Nee
Bouwinstructie 1
9a1d0dea7da25c26b349c8ebe1dd019c
Luifeloppervlakte
7.2 m²
Inclusief Fundering
-
Productblad 1
e65d250ed9ed59cebe0a6996b076f23b
Aantal te openen ramen
8
Vloeroppervlakte binnen
64.8 m²
Afmetingen hoekprofiel
10 cm
Sterkteberekening 1
74994287027550afacc9a571b4b9c843
Reviews
Wat zeggen onze klanten?
Wij vinden het belangrijk om transparant om te gaan met onze reviews, daarom vragen we iedere klant naar de ervaring met tuinhoutdeal.com. Hierbij filteren weniet en verwijderen we ook nooit negatieve reviews. We geven jou als klant namelijk graag altijd een zo objectief mogelijk beeld over de producten, diensten en services die wij leveren.
B. van den Berg

Snelle serivice, goede prijs. Aanrader