Omschrijving
Het basismodel wordt geleverd zonder ramen en buitendeuren. Deze moeten er los bijbesteld worden. Kies uit houten of kunststof ramen en buitendeuren. Let op: het unieke pakketnummer, staat vermeld in de handleiding, op de tekening en op de sticker aan de bovenzijde van het pakket. Zonder dit pakketnummer kunnen wij helaas geen service-verzoeken in behandeling nemen.Specificaties
Glass | gehard isolatieglas |
Included | cilinderslot |
Choose Canopy | met overkapping voorkant |
Erp Pricing Group | Gebouwen |
Colour | Red Class Wood |
Construction Variant | de dakplanken van deze blokhut hebben een dikte van 27 mm, wat ideaal is voor isolatie |
Opening Direction Door | rechts scharnierend |
Material | hout |
Colour Family | rood |
Assortment Type | Primair assortiment |
Durability Class | duurzaamheidsklasse 3 |
Finishing | geschaafd |
Type Door | enkele deur |
Glass Thickness | 3-9-3mm |
Product Life Cycle | Actief |
Type Roof | zadeldak |
Georgian Bar | geen |
Drying | gedroogd |
Material Detailed | vuren |
Treatment | geïmpregneerd |
Included Roof Covering | Optioneel |
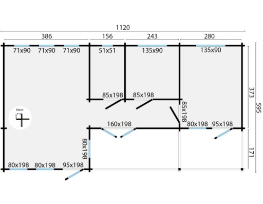
Width | 595 cm |
Length | 1120 cm |
Content M3 | 116.5 m³ |
Foundation | 1100 x 575 cm |
Number Door | 6 |
Number Room | 4 |
Height Ridge | 304 cm |
Surface Total | 58.9 m² |
Wall Thickness | 70 mm |
Stock Threshold | 15 |
Extra Text Field | - |
Roof Surface Area | 75.4 m² |
Suitable Roof Tile | 0 |
Buildinstructions 1 | 44926a3b4ea45c2bb0ab633a2c150921 |
Luifeloppervlakte | 12.3 m² |
Included Foundation | - |
Number Opening Window | 10 |
Inner Floor Surface Area | 46.6 m² |
Asset Technical Drawing 1 | a16f428c2c7d54928e6cf3c8c41f7a9b |
Dimensions Corner Profile | 10 cm |
Asset Strength Calculation 1 | 6cc0cf712e13532ba443ee4ee0fe54be |
Glass
gehard isolatieglas
Included
cilinderslot
Choose Canopy
met overkapping voorkant
Erp Pricing Group
Gebouwen
Colour
Red Class Wood
Construction Variant
de dakplanken van deze blokhut hebben een dikte van 27 mm, wat ideaal is voor isolatie
Opening Direction Door
rechts scharnierend
Material
hout
Colour Family
rood
Assortment Type
Primair assortiment
Durability Class
duurzaamheidsklasse 3
Finishing
geschaafd
Type Door
enkele deur
Glass Thickness
3-9-3mm
Product Life Cycle
Actief
Type Roof
zadeldak
Georgian Bar
geen
Drying
gedroogd
Material Detailed
vuren
Treatment
geïmpregneerd
Included Roof Covering
Optioneel
Width
595 cm
Length
1120 cm
Content M3
116.5 m³
Foundation
1100 x 575 cm
Number Door
6
Number Room
4
Height Ridge
304 cm
Surface Total
58.9 m²
Wall Thickness
70 mm
Stock Threshold
15
Extra Text Field
-
Roof Surface Area
75.4 m²
Suitable Roof Tile
0
Buildinstructions 1
44926a3b4ea45c2bb0ab633a2c150921
Luifeloppervlakte
12.3 m²
Included Foundation
-
Number Opening Window
10
Inner Floor Surface Area
46.6 m²
Asset Technical Drawing 1
a16f428c2c7d54928e6cf3c8c41f7a9b
Dimensions Corner Profile
10 cm
Asset Strength Calculation 1
6cc0cf712e13532ba443ee4ee0fe54be
Reviews
Wat zeggen onze klanten?
Wij vinden het belangrijk om transparant om te gaan met onze reviews, daarom vragen we iedere klant naar de ervaring met tuinhoutdeal.com. Hierbij filteren weniet en verwijderen we ook nooit negatieve reviews. We geven jou als klant namelijk graag altijd een zo objectief mogelijk beeld over de producten, diensten en services die wij leveren.
B. van den Berg

Snelle serivice, goede prijs. Aanrader