Omschrijving
Het basismodel wordt geleverd zonder ramen en buitendeuren. Deze moeten er los bijbesteld worden. Kies uit houten of kunststof ramen en buitendeuren. Let op: het unieke pakketnummer, staat vermeld in de handleiding, op de tekening en op de sticker aan de bovenzijde van het pakket. Zonder dit pakketnummer kunnen wij helaas geen service-verzoeken in behandeling nemen.Specificaties
Included | cilinderslot |
Choose Canopy | met overkapping voorkant |
Erp Pricing Group | Gebouwen |
Georgian Bar | losse roedes |
Construction Variant | de dakplanken van deze blokhut hebben een dikte van 27 mm, wat ideaal is voor isolatie |
Opening Direction Door | rechts scharnierend |
Colour Family | grijs |
Material | hout |
Assortment Type | Primair assortiment |
Durability Class | duurzaamheidsklasse 3 |
Finishing | geschaafd |
Glass Thickness | 3-9-3mm |
Product Life Cycle | Actief |
Type Roof | zadeldak |
Drying | gedroogd |
Type Door | dubbele deur |
Material Detailed | vuren |
Glass | isolatieglas |
Colour | zilvergrijs |
Treatment | geïmpregneerd |
Included Roof Covering | Optioneel |
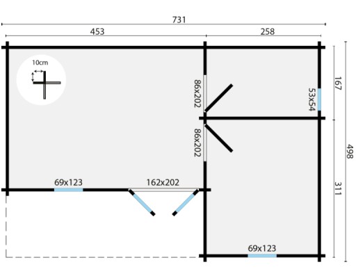
Width | 498 cm |
Length | 731 cm |
Content M3 | 6.3 m³ |
Foundation | 711 x 478 cm |
Number Door | 3 |
Number Room | 3 |
Height Ridge | 283 cm |
Surface Total | 31.7 m² |
Wall Thickness | 70 mm |
Stock Threshold | 15 |
Extra Text Field | - |
Roof Surface Area | 39.6 m² |
Suitable Roof Tile | 0 |
Buildinstructions 1 | db48a9e01b205b2a8988e0fc6ea10dea |
Buildinstructions 2 | - |
Luifeloppervlakte | 6.2 m² |
Included Foundation | - |
Asset Product Sheet 2 | - |
Number Opening Window | 3 |
Inner Floor Surface Area | 25.5 m² |
Asset Technical Drawing 1 | - |
Dimensions Corner Profile | 10 cm |
Asset Strength Calculation 1 | bf6dc37c6635547abde3e71ddddb7f5e |
Included
cilinderslot
Choose Canopy
met overkapping voorkant
Erp Pricing Group
Gebouwen
Georgian Bar
losse roedes
Construction Variant
de dakplanken van deze blokhut hebben een dikte van 27 mm, wat ideaal is voor isolatie
Opening Direction Door
rechts scharnierend
Colour Family
grijs
Material
hout
Assortment Type
Primair assortiment
Durability Class
duurzaamheidsklasse 3
Finishing
geschaafd
Glass Thickness
3-9-3mm
Product Life Cycle
Actief
Type Roof
zadeldak
Drying
gedroogd
Type Door
dubbele deur
Material Detailed
vuren
Glass
isolatieglas
Colour
zilvergrijs
Treatment
geïmpregneerd
Included Roof Covering
Optioneel
Width
498 cm
Length
731 cm
Content M3
6.3 m³
Foundation
711 x 478 cm
Number Door
3
Number Room
3
Height Ridge
283 cm
Surface Total
31.7 m²
Wall Thickness
70 mm
Stock Threshold
15
Extra Text Field
-
Roof Surface Area
39.6 m²
Suitable Roof Tile
0
Buildinstructions 1
db48a9e01b205b2a8988e0fc6ea10dea
Buildinstructions 2
-
Luifeloppervlakte
6.2 m²
Included Foundation
-
Asset Product Sheet 2
-
Number Opening Window
3
Inner Floor Surface Area
25.5 m²
Asset Technical Drawing 1
-
Dimensions Corner Profile
10 cm
Asset Strength Calculation 1
bf6dc37c6635547abde3e71ddddb7f5e
Reviews
Wat zeggen onze klanten?
Wij vinden het belangrijk om transparant om te gaan met onze reviews, daarom vragen we iedere klant naar de ervaring met tuinhoutdeal.com. Hierbij filteren weniet en verwijderen we ook nooit negatieve reviews. We geven jou als klant namelijk graag altijd een zo objectief mogelijk beeld over de producten, diensten en services die wij leveren.
B. van den Berg

Snelle serivice, goede prijs. Aanrader